Добро пожаловать на http://vipplan.ru

Випплан Королев - это тысячи проектов домов в нашем каталоге!

Вы всегда сможете найти для себя проект дома вашей мечты! Даже если этого не случилось, мы готовы в любую минуту предложить проект индивидуального дома.

Забыли пароль?
Вы еще не регистрировались?

Перейдите по ссылке ниже на страницу регистрации.

Регистрация...

Внимание!!!

В проектную документацию могут быть внесены изменения любой сложности, в соответствии в Вашими пожеланиями!

Полезные статьи

Выбор бригады строителей в Королеве

Перед началом строительства дома перед будущим хозяином загородной недвижимости в Московской области обозначится несколько вариантов: обратиться в строительную компанию, специализирующуюся на малоэтажном коттеджном строительстве, воспользоваться услугами частной бригады; строить самому "своими руками"....

Где копать колодец?

Водоснабжение за городом - Королев всегда было проблематичным. При отсутствии центрального водоснабжения остается только один выход – выкопать колодец. Водоносный пласт есть не везде. Как же определить, где копать колодец?...

Проекты домов и коттеджей > Каталог проектов домов > Проект одноэтажного дома с навесом для автомобиля Vg2309

Проект одноэтажного дома с навесом для автомобиля Vg2309

Проект одноэтажного дома с навесом для автомобиля
Зарегистрируйтесь

Проект № Vg2309


Техническое описание
Общая площадь: 96.31 м2
Жилая площадь: 63.17 м2
Высота здания: 6.57 м
Размеры дома: 10.4м×10.46м
Кол-во комнат: 3
Цокольный этаж: нет
Гараж: нет
Мансарда: нет

Kонструкция
Фундамент: Монолитная плита
Перекрытия: Деревянные балки
Материал стен: Каркас

Архитектурный раздел
Конструктивный раздел
АР+КР - 44 000 (Со скидкой 20%)
Модель проекта индивидуального одноэтажного жилого дома с размерами здания 11,40 x 10,46 м. Наружная отделка здания – сайдинг. Фундамент – монолитная плита. Наружные стены – деревянный каркас. Внутренние стены - деревянный каркас. Перегородки - ГКЛ на металлическом каркасе. Пол первого этажа - пол помонолитной плите. Чердачное перекрытие —деревянные балки перекрытие. Крыша многоскатная. Кровля – битумная черепица. Окна — металлопластиковые
Генплан застройки участка / Паспорт проекта 7000 руб / 10000 руб
Инженерный раздел (полный) 50000 руб
Смета на строительство 25000 руб
Теплотехнический расчет материалов стен Бесплатно
Стоимость проекта со незначительнми изменениями 52600 руб
Стоимость проекта со средними изменениями* 59800 руб
Стоимость проекта со значительными изменениями** 61700 руб

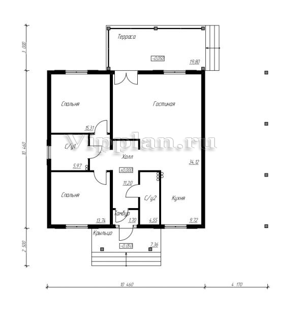
План первого этажа


Тамбур — 1,7 м2
Холл — 11,2 м2
Спальня — 15,31 м2
С/у — 5,97 м2
Спальня — 13,74 м2
С/у — 4,55 м2
Гостиная — 34,12 м2
Кухня — 9,72 м2
Терраса — 19,8 м2
Проект одноэтажного дома с навесом для автомобиля Проект одноэтажного дома с навесом для автомобиля Проект одноэтажного дома с навесом для автомобиля Проект одноэтажного дома с навесом для автомобиля

Модификации проектов

Внесение изменений и привязка к участку строительства

В любой из проектов от компании VIPplan - Королев по вашему желанию могут быть внесены изменения в материалы стен, материалы наружной отделки дома, а также будет произведена адаптация проекта под конкретный регион строительства (с учетом грунтов региона, геологических особенностей вашего участка и местных климатических условий) - БЕСПЛАТНО !!! (кроме проектов со скидкой и проектов наших партнеров).

Любой из проектов, размещенных на сайте korolev.vipplan.ru мы можем выполнить из требуемых вам строительных материалов: ячеистый бетон (газобетон, пеноблок), керамоблок, кирпич, шлакоблок, бетонный блок, дерево (брус, клееный брус), каркасная технология (деревянный каркас, металлокаркас (ЛСТК)).

Фасад дома и его наружную отделку так же возможно выполнить с применением различных облицовочных материалов: структурной штукатурки, (с утеплителем и без), сайдингом (пластиковый или металлосайдинг), фиброплитами, кирпича.

 
6 Избранные
проекты

Доставка проектов по России: Москва (Московская область), Санкт-Петербург (Ленинградская область), Краснодар, Ростов-на-Дону, Ставрополь, Сочи, Волгоград, Новосибирск, Белгород, Брянск, Воронеж, Саратов, Хабаровск, Астрахань, Нальчик, Владикавказ, Екатеринбург, Тюмень, Самара, Нижний Новгород, Казань, Пермь, Уфа, Челябинск, Красноярск, Ханты-Мансийск, Иркутск, Курган, Оренбург, Омск, Томск, Барнаул, Новокузнецк, Кемерово, Абакан, Чита, Якутск, Южно-Сахалинск, Петропавловск-Камчатский и страны ближнего зарубежья: Белоруссия, Украина, Казахстан